Straßenmeisterei Halle

 

Ersatzneubau, Verwaltung, Werkstatt, Fahrzeug- und Waschhalle
Straßenmeisterei Halle
2021-2026
Auftraggeber: Land NRW, Straßen NRW
Tragwerksplanung: Haase, Lüdinghausen
Fachplanung HLS: Hoffmann, LH Ingenieure, Lingen
Fachplanung Elektro: Möller, Vlotho
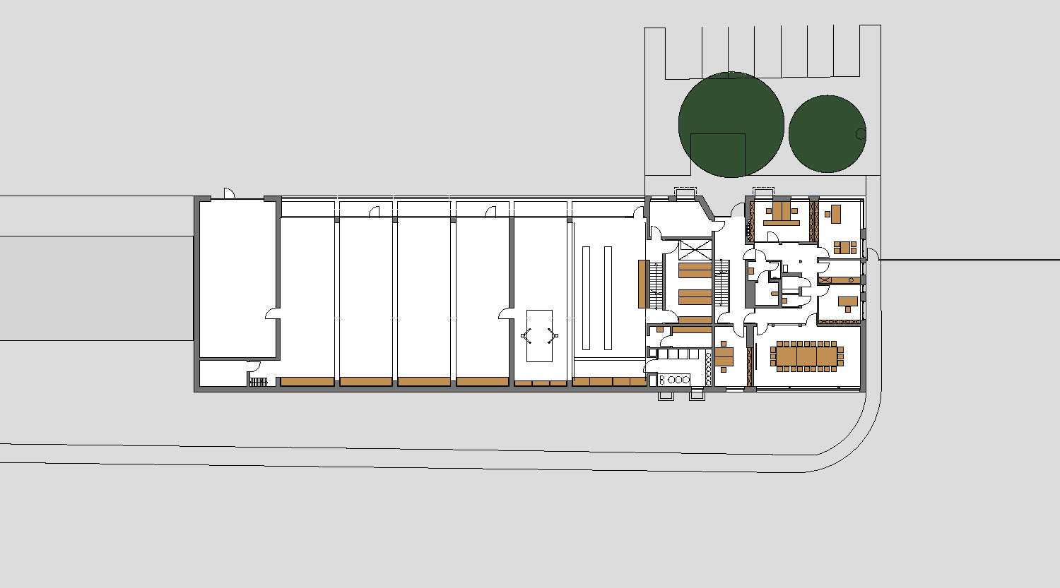
Die Straßenmeisterei in Halle ist Pilotprojekt für eine möglichst CO2 neutrale Meisterei mit Einleitung des Wechsels zur Elektromobilität. Die Bestandsgebäude stammen aus den 1960er Jahren und wurden zum Teil nach Typenentwürfen erbaut. Erhalten und umgenutzt werden die ehemalige Werkstatthalle und die Gerätehalle. Die Salzhalle neueren Baujahrs bleibt unverändert, wird jedoch in das Energiekonzept integriert. Ersetzt wird das Gebäude mit Verwaltungs- und Sozialräumen. In dem 65×19 m messenden und 8m hohen Neubau entstehen außerdem eine zeitgemäße Werkstatt, eine Fahrzeughalle für LKW und eine Waschhalle.
Büroräume und Schulungsraum sind barrierefrei geplant. Das Gebäude erhält einen sehr guten Dämmstandard und Lüftungsanlagen mit Wärmerückgewinnung. Der damit bereits vergleichsweise niedrige Energiebedarf wird weitgehend regenerativ gedeckt. Eine Sole-Wasser-Wärmepumpe mit Eisspeicher, sehr große PV Anlagen mit großzügig bemessenem Speicher lassen das Gebäude über weite Zeiträume des Jahres autark betreiben.
Die Dachfläche wird fast vollständig mit Sonnenkollektoren ausgestattet. Einerseits als PV Anlage zur Stromerzeugung, anderseits mit Solarmodulen zur Unterstützung der Warmwassererwärmung und der Regeneration des Eisspeichers.
Die Fassade des Neubaus ist in hellgrauem Klinker geplant. Straßen NRW legt seit jeher Wert auf eine nachhaltige Ausführung der Gebäude. Wenn man sich mit dem Gebäudebestand des Landesbetriebs befasst, der über 50 Straßenmeistereien in NRW umfasst, kann man sehen, dass Gebäude mit angemessener Instandhaltung auch noch nach vielen Jahrzehnten täglich funktionieren und gut gealtert sind. So wird mit zwar anfangs höherem baulichen Aufwand eine, verglichen mit dem heute üblichem Gewerbebau, deutlich längere Nutzungsdauer erreicht.