Pförtnerhaus HCR Herne

  • heiderich architekten lünen pförtnerhaus hcr herne

 

Pförtnerhaus HCR Herne
2007

Architekten: Heiderich Hummert Klein, Dortmund

Auftraggeber: Straßenbahn Herne Castrop-Rauxel GmbH HCR
Tragwerksplanung: Lederhose & Wittler, Dortmund

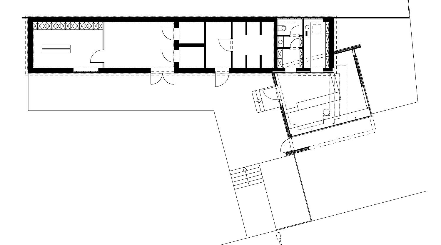
Das Baugrundstück befindet sich in Herne- Börnig, auf dem Betriebsgelände eines Busunternehmens, der Straßenbahn Herne Castrop-Rauxel GmbH HCR. Das Pförtner- und Eingangsgebäude dient als zentraler Empfang an der Zufahrt zum Betriebsgelände der HCR. Errichtet im Jahr 1959 und seitdem bereits einmal umgebaut, wurde es im Jahr 2006 erneut erweitert und modernisiert.

Die Umbaumaßnahme erfolgte unter laufendem Betrieb. Die Bauzeit mußte dementsprechend auf ein Minimum begrenzt werden. Der Umbau wurde innerhalb einer Gesamtbauzeit von nur 4 Monaten realisiert.

Der vorgefundene Bestand war in zwei Baukörper gegliedert. Das mit rotem Ziegel verkleidete 1-geschossige Pultdachgebäude, in dem sich Technik- und Nebenräume befinden, blieb äußerlich weitgehend unverändert und wurde im Rahmen der Baumaßnahme saniert.

Der darin anschließende trapezförmige Baukörper, die eigentliche Pförtnerloge, wurde bis auf die Gründung abgebrochen, da der zur Verfügung stehende Raum für die veränderten Ansprüche der Nutzer zu wenig Platz bot.

Die auf einem Trapez basierende Grundrissform der Pförtnerloge wurde beibehalten, die vorhandene Bodenplatte wurde zur Strasse erweitert. Der Neubau setzt sich nicht nur als formal eigenständiger Baukörper, sondern auch in der Konstruktion und in der Auswahl der Materialien und Oberflächen deutlich vom bestehenden Gebäude ab.

Die Pförtnerloge wurde als vorgefertigte Holzkonstruktion erstellt. Das Erscheinungsbild ist geprägt von der Fassadenverkleidung aus großformatigen Eternittafeln, die sich wie ein Band um den Baukörper wickeln. Es entstehen je nach Erfordernis geschlossene und verglaste Fassadenelemente.

Die dem Betriebshof zugewandte Fassade ist weitgehend verglast, die Verkleidung ist auf schmale Bänder im Bereich der Brüstung und des Dachrands reduziert, um hier einen umfassenden Überblick über die Zufahrt und die Hoffläche des Betriebshofs zu ermöglichen.

Die dem Nachbargrundstück zugewandte Fassade hingegen ist beinahe vollständig geschlossen. Der Neubau legt sich mit dieser geschlossenen Seite auf das Pultdach des bestehenden Baukörpers und bietet zu den übrigen 3 Seiten durch unterschiedlich weite Auskragungen der Dachfläche im Bereich der Verglasungen und des Eingangs Schutz vor der Witterung, d.h. vor Sonne und vor Regen.

Die Innenräume des bestehenden Baukörpers wurden komplett entkernt, sämtliche Installationen wurden erneuert. Die Möblierung des Pförtnergebäudes wurde den Erfordernissen entsprechend, speziell für dieses Gebäude, entworfen und vom Schreiner angefertigt.

Entstanden ist ein Arbeitsplatz, der auf kleinem Raum viel Platz für die vielfältigen Funktionen bietet, die in diesem Gebäude ausgeführt werden.